※イベント終了【令和8年1月12日】リノベ内覧会
※こちらのイベントは終了しました。次回は3月28日(土曜日)で企画中です。
内覧を希望の方は個別にお問い合わせ頂ければ幸いです。
兵庫県・めいまい図書室主催の「明舞 団地住み替え相談会」に出展します。
フロッグハウスは「団地リノベツアー」を担当予定です。
ツアーでお見せする住戸は全部で3つ。
1つ目の物件は松が丘住宅(メゾネットタイプ)の団地リノベーション。
12月20日はテレビ放送の影響もあってか、50人以上の方にご内覧いただきました。
#一時は廊下に靴が溢れ出す程に
#声が枯れるぐらい喋った
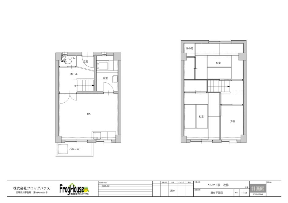
【before図面】
元々は1家族4人暮らしを想定して細かく区切った「昭和スタンダード」な間取りでしたが・・
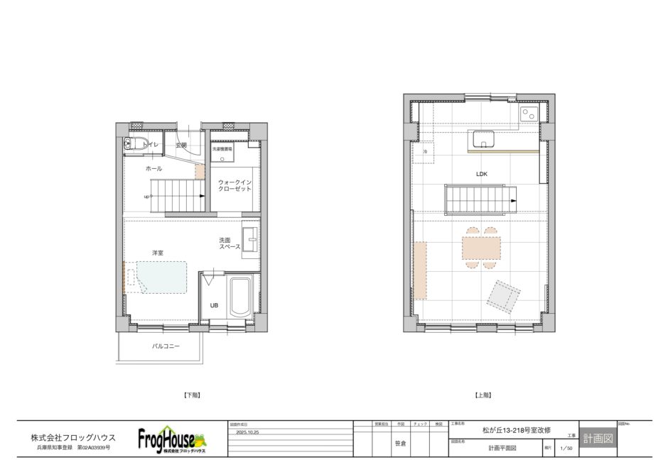
【after図面】
シングルorDINKsを想定した間取りに変更しています。
広いLDK+寝室+ウォークインクローゼットの間取りです。
キッチンを2階に移設し、洗濯機置き場を室内置きにしました。
こちらの住戸は2026年前半はオープンハウス等で使用しながら、2026年4月以降に1280万円で売却予定です。
元々キッチンのあった場所にユニットバスを設置しています。
防水性能アップ&換気扇設置でカビ・換気対策もOK。
階段が狭く急勾配だったのが難点でしたが、階段を掛け替えました。
劇的に上り下りがやりやすくなりました!
床・天井・が一部迫り出して壁も含めて3面が外気に面してる北側部分もしっかり断熱。
「兎に角、寒くて結露がすごい」というイメージだった旧北側和室は断熱で包んだ上でキッチンになっています。
#48年前から34年前まで住んでいた。#経験者は語る
勿論内窓も設置して、防音・防犯・断熱性能を向上させています。
こちらの物件は1月12日(月・祝)の10時から15時は笹倉が待機していますので、直接予約なしでお越し頂いても大丈夫です。
【日時】令和8年1月12日(日 祝) 午前の部10時〜12時 午後の部 13時〜15時
【場所】明石市松が丘1丁目4 松が丘住宅13号棟218号室
【内容】メゾネットタイプ 団地リノベ 室内配管更新 断熱工事含む(等級5)
※駐車場ありません。周辺コインパーキングか、JR明石駅からバスと徒歩で約20分(明舞循環バス 10分に1本)です。
近隣は閑静な住宅街ですので、ご配慮頂けると幸いです。
もし、具体的な物件のご相談がある場合は事前にご連絡頂ければ幸いです。
当日、私はこの住み替え相談会の会場に居る予定です。
私の他にも会場には、住み替え支援・相談のプロたちが一堂に集まっています。
お持ちの空き家やリノベに関するetcを相談されたい方はこちらにお越し頂ければ幸いです。
場所:明石市松が丘2丁目3−7(松が丘ビル3F大会議室)
日時:令和8年1月12日(月・祝) 10時から15時
内容:10時半からと13時半から団地リノベツアー
※駐車場は周辺コインパーキングをご利用ください。
リノベツアーでは、狩口台住宅の空き住戸(未改装状態)と、愛ある団地プロジェクトでリノベ済みの住戸(1380万円で販売中)を案内予定。
未改装状態の物件は、つい先日フロッグハウスが購入しました。
詳しい販売情報はこちらから・・
https://www.realkobeestate.jp/estate.php?n=25097
会場から徒歩で10分程度で歩いて行ってのご案内になります。
(こちらはまずは住み替え相談会会場にお越しください。)
今年はパンの販売もあるみたいですね〜!
住み替えやリノベに関するetcを知りたい・見たい方はお気軽にお越しください!
最後に希望者には未改装状態の空き部屋もご案内。
こちらは年明けからリノベーション着工予定のお家ですが「おこのみ賃貸」企画でのリノベーション予定となっています。
間取りは1LDKに改装予定。
断熱工事もしっかりと標準工事でやりますが・・
#基本的に上記販売中の29−402号室と同じような感じ
クロスや床材は選択可能。
無垢やアクセントクロスも変更は勿論OK!
#金額アップ分は借主負担になります
しかも・・
もし賃貸で住んでみて、この住戸が気に入れば買取もOK。
しかも、その際は賃貸入居時に支払った家賃の半額も買取金額から値引きOK。
眺望と風通しの良いお部屋です。
【例】
家賃 84,000円で4年賃貸入居後買取の場合
販売価格 1280万円
8.4万円x48ヶ月=403万
1280ー400=1080万円
=1080万円で買取可能
オーナーさんは狩口台住宅で3件目の団地・賃貸リノベーション。
それに際して、「次はまた、新しくオモシロい事をしたいよね〜」という事でこんな企画になりました。
こちらのオーナーさんは元々は、フロッグハウスの企画 おこのみ賃貸でリノベーション賃貸にご入居頂いていた方です。
お仕事の都合で今は遠方にお住まいですが、今は「団地リノベ賃貸」をオーナーとして趣味と実益を兼ねて楽しんでおられます。
おこのみ賃貸の新しい進化系。
ご興味ある方は是非お越し頂ければ幸いです!
※こちら見学希望の方は事前にメール頂ければ幸いです。
さて、このブログは2025年12月31日に書いていまして・・
実務は12月30日は挨拶廻りで本年度の業務は終了となりました。
お世話になった方々に温かい言葉やお礼の言葉まで頂いて、改めてこんなオモシロい仕事が出来て幸せだと感じています。
リノベ後始めての冬を迎えられる方は「暖かくてめちゃくちゃ快適」というお声もたくさん頂きました。
こうしたお声に後押しされて、断熱・内窓工事は特に力を入れさせて頂いています。
また、リノベするお部屋は、元は似たような間取りでも・・お施主さんによって出来上がる部屋の間取りもテイストも全く違います。
#テイストで縛っていないのが持ち味だと自負している
2026年も、お施主さんのアイディアやお声を取り入れながら更に変化・進化して行きたいと思っています。
ご挨拶廻りきれなかった方々も、2025年は大変お世話になりました!
2026年も、フロッグハウスを宜しくお願い致します!
良いお年をお迎えください。


















