【イベント終了】※このイベントは終了しました
2件の団地リノベのオープンハウスを企画しています!
まずは1件目をご紹介。
こちらは「愛ある団地プロジェクト」の第二号案件です。
設計施工:フロッグハウス
販売:エンジョイワークス株式会社(愛ある団地プロジェクト)
【場所】 神戸市垂水区狩口台4丁目29号棟−402号室
【時間】 令和7年 11月22日13時から16時(午後のみ)
【内容】 団地リノベーション 室内配管更新 断熱工事含む(等級4)
【販売価格】 1380万円
※駐車場ありません。近隣コインパーキングか、JR朝霧駅から徒歩でお越しください。
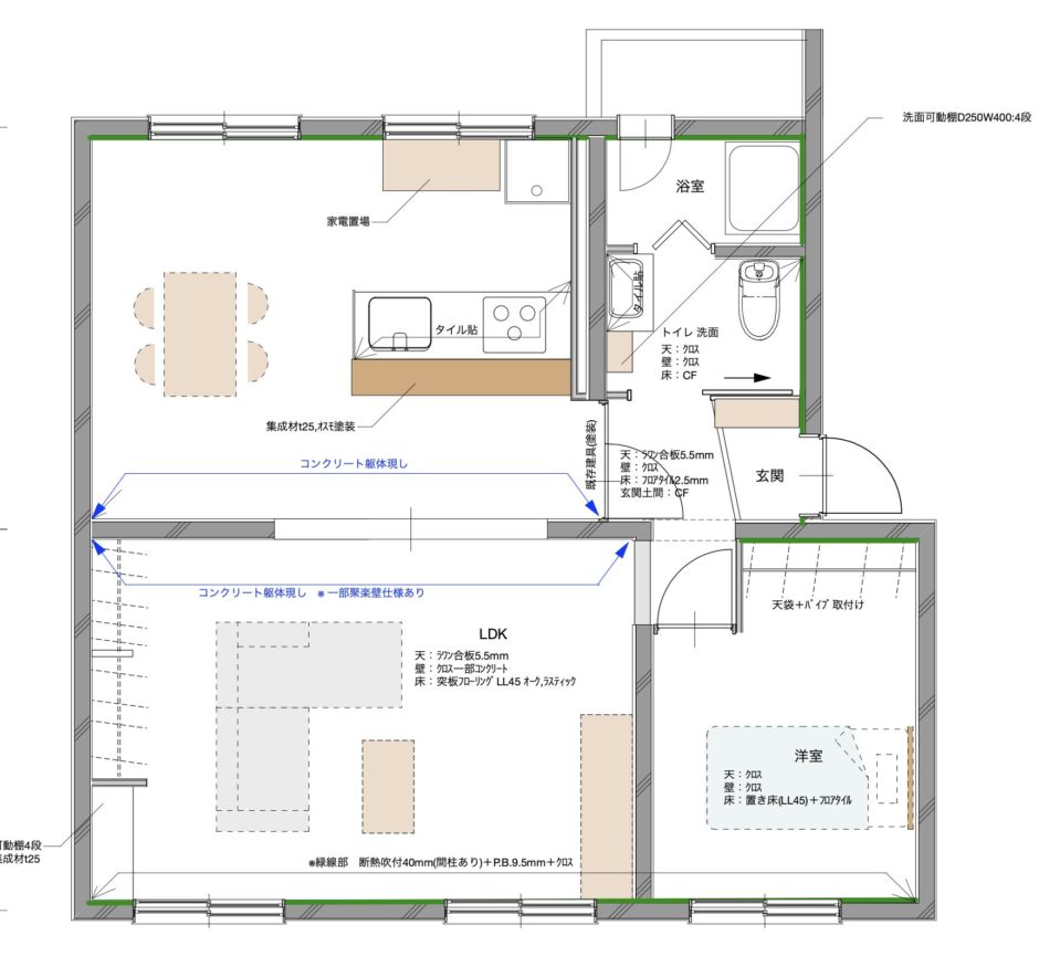
間取りはこんな感じになっています!
ちなみに、ビフォーはこちら。
典型的な団地の3DKをシングルや2人暮らし向きな1LDKにチェンジしました。
販売物件ではありますが、「団地リノベってどんな感じ?」「空き家の活用を検討中」「中古を買ってリノベーション検討中」「フロッグハウスってどんな人達?」という方もお気軽にお越し頂ければ幸いです。
特に予約は必要ありませんが、もし具体的な相談がある場合は事前にご相談頂ければ幸いです。
続きまして、2件はフロッグハウスとしての団地購入&リノベ物件の明石市・松が丘1丁目の物件です。
こちらは代表清水の生まれ育ったエリアです。
#宅建業取得第一号案件
相続放棄の物件を買い取って現在リノベ中です。
#購入価格 80万円
#荷物の処分に50万円
#人気上昇中の明石エリア
#物件相場はお値頃感あり
ビフォー写真もプロの写真家(藤田温くん)に撮影して貰ったのですが・・
残された物たちからは、中々に訴えかけるものがありました。
ちなみに藤田くんは空き家を写真に残す活動をしています。
キオクノキロク https://katachi-photo.com/service/kioku-no-kiroku/
#家仕舞い 終活を検討中の方にオススメです
誰にも住み継がれず、「放棄」された物件ではありますが・・
こちらの物件がどんな風に生まれ変わるのか?
是非見に来て頂ければ幸いです。
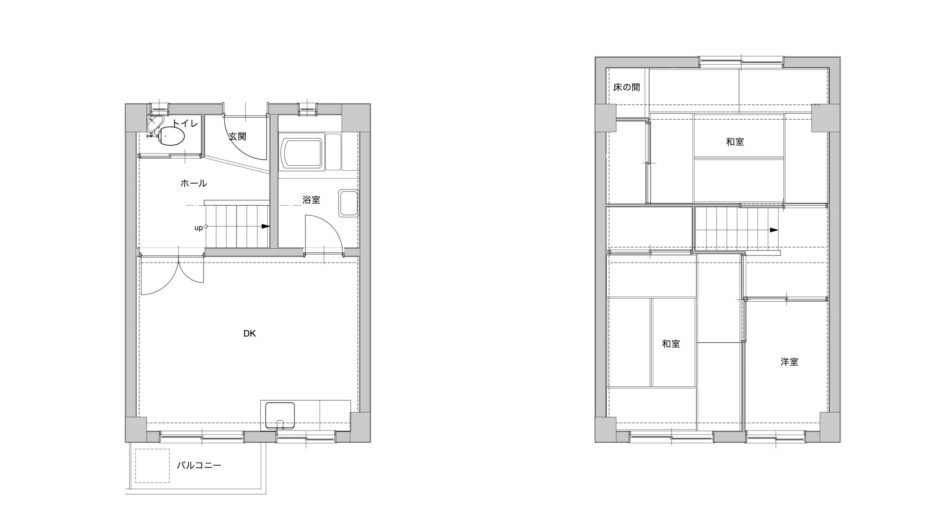
間取り的には、ビフォーはこんな感じでしたが・・
#謎の3畳間
#洗濯機バルコニー置き
#急な階段
#洗面と風呂が一緒
#団地のツッコミどころ
2FをLDKにして、こちらも1人〜2人暮らしをターゲットにしています。
前回同様、管理組合の許可を貰って排水縦管から分岐して排水を確保しています。
#詳しくは前回の改装ブログを読んでください
#配管分岐はテストで書くと0点。
こちらは今から、賃貸に出すか?売却するか?決めかねています。
移住者のがお試しで住める様な賃貸にしてもいいかな?っとか思ったりもしていますが、あっさりと「住みたい!」って人が出たら売ってもいいかな?っとも思ったり。
#空き家はまだあるのでこの部屋に固執しなくても良い
#そんなニーズがあるのか?も聞いてみたい。
現在絶賛工事中ですが、この頃には12月には完成してお披露目出来るかと思っています。
今回の「団地のツッコミどころ」改善ポイントは「急勾配階段」。
是非、近隣住民さんも来て欲しいなぁ〜!
#きっといいリアクション頂けると思う
【日時】令和7年12月20日(土) 10時から16時
【場所】明石市松が丘1丁目4 松が丘住宅13号棟218号室
【内容】メゾネットタイプ 団地リノベ 室内配管更新 断熱工事含む(等級5)
※駐車場ありません。周辺コインパーキングか、JR明石駅からバスと徒歩で約20分(明舞循環バス 10分に1本)です。
こちらの2戸はいずれも「明舞団地」と呼ばれるエリア。
※同時開催ではありませんのでご注意ください。
近隣は閑静な住宅街ですので、ご配慮頂けると幸いです。
中古マンション・団地のリノベーションを検討中の方の参考になれば嬉しく思います〜













