【買取可能オプション付き】おこのみ&お試し賃貸 入居者募集です!
垂水区狩口台の団地リノベーション賃貸の入居者募集中!
しかもこちらの賃貸住宅はなんと・・買取可能オプション付き!
【募集条件】
家賃:84,000円
駐車場:5,000円
販売価格 1280万円
礼金 1ヶ月
【買取前提 賃貸例】
4年住んでから購入した場合だと、今まで払った家賃の半額が値引きされます。
8.4万円x48ヶ月(4年分支払い家賃)=4,030,000円
4,030,000 ➗2=2,015,000円
12,800,000ー2,015,000(支払い家賃の50%)=10,785,000円
=10,785,000円で買取可能
賃貸中でも購入の2か月前に連絡あれば、
(例えば1年賃貸で住んで、「これはもう買いだな!」っと思った場合は1年後の購入も可能です。)
購入前提賃貸の方は、オーナーに内容共有&
※「棚を追加したい」や「壁紙を変えたい」etc・・
などなど購入前でもリノベーションいただけます
【完成イメージ写真】
※写真は同じ団地で現在販売中の29−402号室です。
【神戸R不動産 販売ページ】
「団地リノベの現在地」
https://www.realkobeestate.jp/estate.php?n=25097
現在は絶賛工事中ですが、申し込み頂いた方には何と、内装(壁紙や床材)がお好みで選べちゃいます。
無垢材なんかの選択も可能となっています!
#但しL45指定
#申し込みがなければ、ほぼこの仕様で作っちゃいます。
ちなみにもし、アクセントクロスを貼ったらこんな感じにも出来ます。
もちろん、こんなアクセントクロスもOK。
#量産クロスとの差額分は借主負担です。
ちなみに、こちらは同じ団地の他のお部屋です。
床材は無垢のパイン材を使用しています。
同じ団地でほぼ間取りは同じでも、使う仕上げのクロスや素材によってイメージは全然違うと思います。
2023.12 アーチでつながる柔らかな団地【神戸市】
団地の低い梁は圧迫感がありますが、アーチ開口とすることで、空間にアクセントをつけながらもゆるく区切ることができます。 このアーチと、ウィリアム・モリスの壁紙が混…
選択肢の広さや多様性を受け入れる懐の広さが、団地リノベのオモシロいところかと思っています。
こんなに自由なのに、試しに住んでからの買取もOK。
賃貸住宅の企画「おこのみ賃貸」に「お試し住み」の企画も加わりました。
勿論そのまま賃貸で住み続けることも可能です。
【25−402 断熱施工写真】
現在は下地工事を絶賛工事中。
今回は下地の組み方を変えて、より効果的に断熱が出来る仕様に変更しました。
#日々更新
#外壁面だけではなく、隣戸ある部分も断熱
なので、めちゃくちゃしっかり断熱しています。
新築にも負けない断熱等級4以上。
#自前の計算では等級5行く
#今後、ちゃんと専門の会社に計算してもらうつもり。
この団地(明舞 8団地 狩口台4丁目)は、既存の窓がペアガラスの変わっているのですが・・
更にペアガラスの内窓を設置予定。
#ダブルペアガラス
#合計 ガラス4枚
入居いただいた方からは、めちゃくちゃ静かで結露もないとの事です。
#めちゃくちゃ寒い日にうっすらと外側の窓が曇るくらい
断熱工事を行った方は、皆さん住んでからの満足度が高く、そのお声がucchiにも掲載されました。
【すまいるネット通信 vol 63】
#恥ずかしながら清水も載っています。
#高丸団地 断熱リノベ事例
こうしたOB施主の声に後押しされて、自信を持ってオススメしています。
#証言1「外に出たら、今日はこんな寒い日だったんだと気づいた」というLINEが届く
#証言2「朝起きたら窓の結露を拭く」というルーティーンから解放された。
#証言3「今年はまだ暖房付けていない」(12月下旬)
#証言4「昨日は雷だったらしけど、静かだったので気付かなかった」
#証言5「冬に母が泊まりに来て、この家は風呂上がりにTシャツで過ごせると驚かれた」
#ほんの一例です。
過去の施工事例のお声を総合して、エアコンは1台で計画中。(浴室は暖房乾燥機あり)
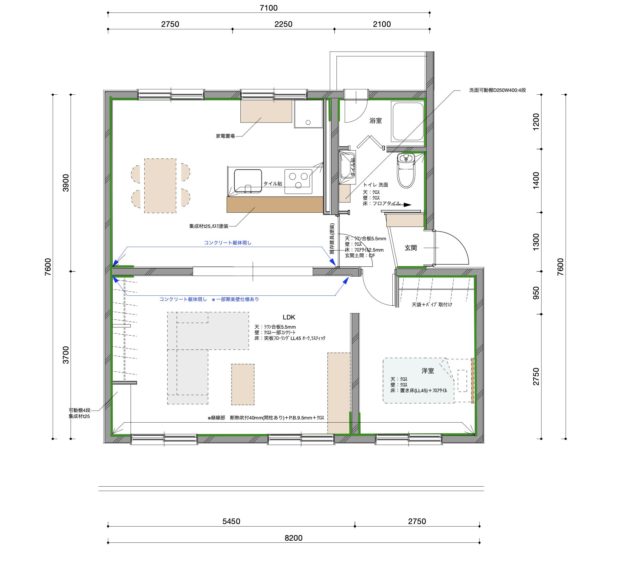
今回の間取りは1LDKで1〜2人向けの間取りです。
#洋室を仕事部屋にして、南側を寝室にしてる事例もあります。
とにかく、「これでもか!」っというくらいお得な事がてんこ盛りの今回の「おこのみ&お試し賃貸」企画。
申し込むなら今のうちですよ〜!
【申し込み期限】 令和8年2月14日まで
【完成日時】 令和8年4月上旬完成予定
【場所】神戸市垂水区4丁目 25号棟 402号室
【家賃 条件】
家賃:84,000円
駐車場:5,000円
販売価格 1280万円
礼金 1ヶ月
【注意事項】
※但し、入居・改装内容にはオーナーさんの審査がある旨をご了承ください。
【お問合せ先】
株式会社フロッグハウス
info@froghouse.top
タイトルに「狩口台25−402 お問合せ」と書いてください。
















